architect & painter creative studio

MIESZKANIE OLI

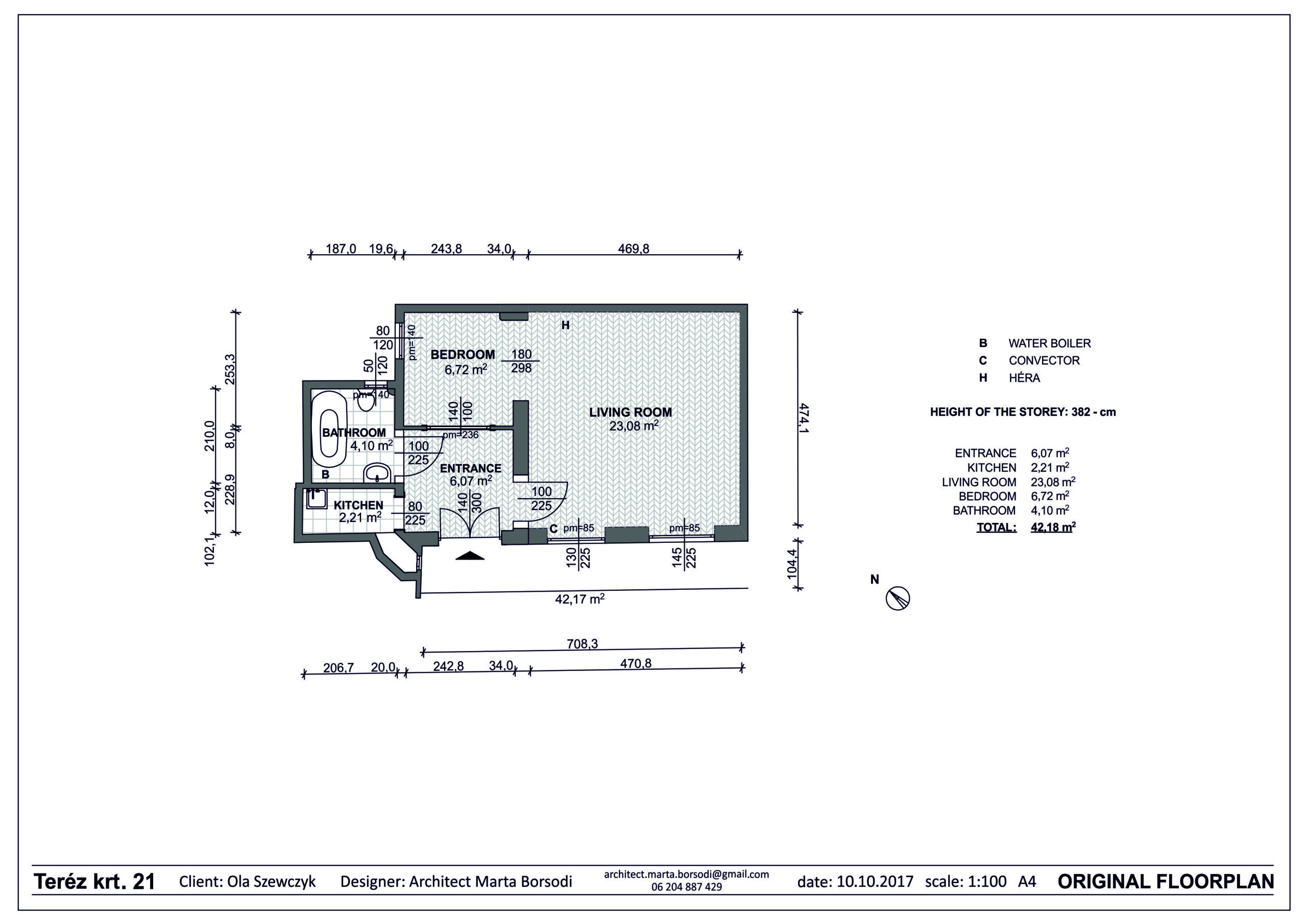
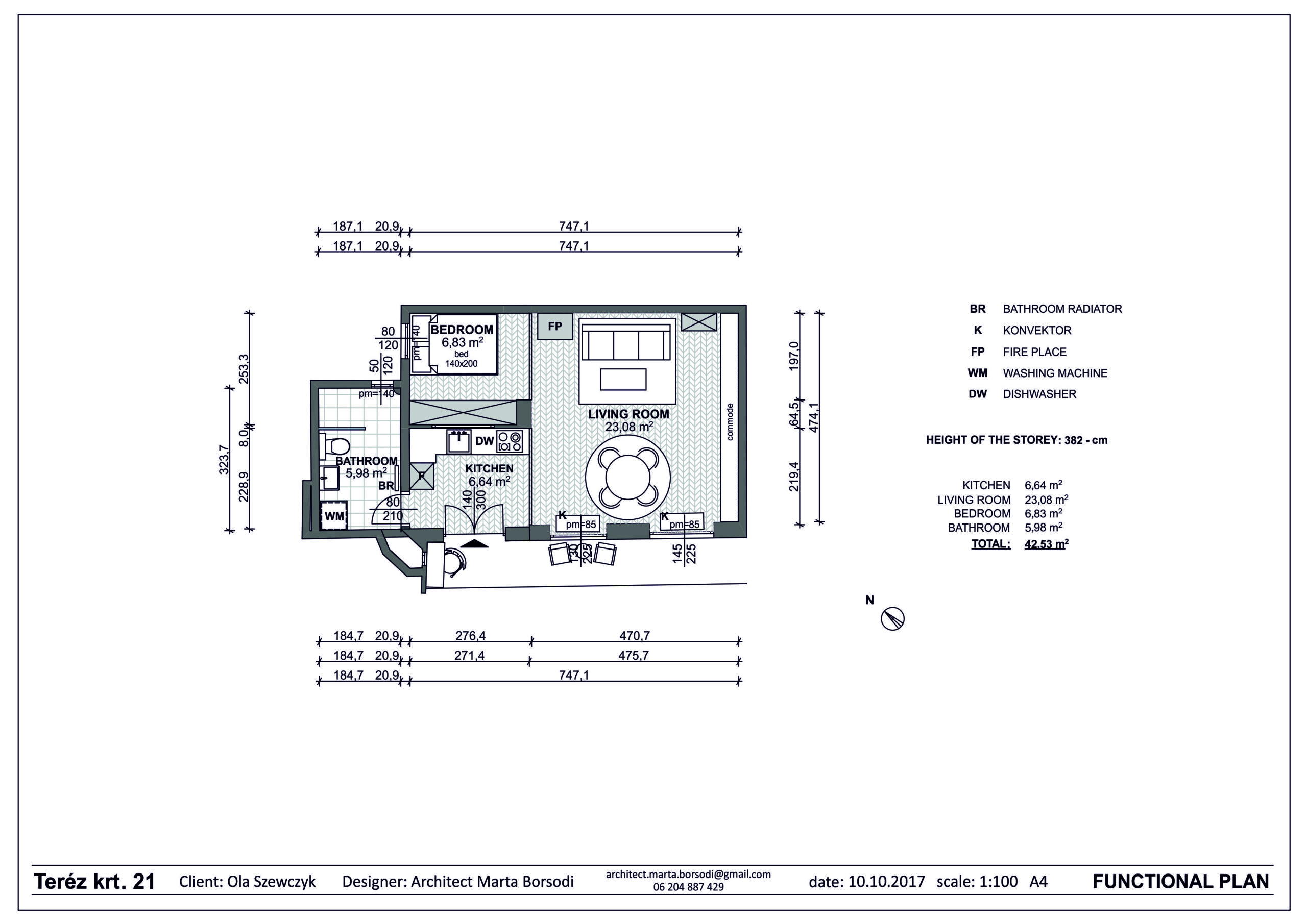
Ola kupiła bardzo zaniedbane mieszkanie, które potrzebowało kompletny remont. Mieszkanie jest małe, bo ma około 42m2 i tylko 2 okna, co bardzo organiczna w projektowaniu nowego układu funkcjonalnego. Mimo wszystko zaproponowaliśmy nowy rozkład pomieszczeń, tak aby mieszkanie było wygodniejsze i bardziej przestronne. Zburzyliśmy ścianę nośną, by dodać wnętrzu optycznie więcej przestrzeni i udało się. Dzięki temu zabiegowi kuchnia, salon i sypialnia, mimo, że w osobnych częściach, tworzy spójną całość i daje złudzenie większego mieszkania. Wykończenie, czyli dobór materiałów wykończeniowych, mebli, czy dekoracji leżało po stronie Oli.

DATA
KATEGORIA
ARCHITEKT

Marta Borsodi