architect & painter creative studio

IncQuery Labs / Office II

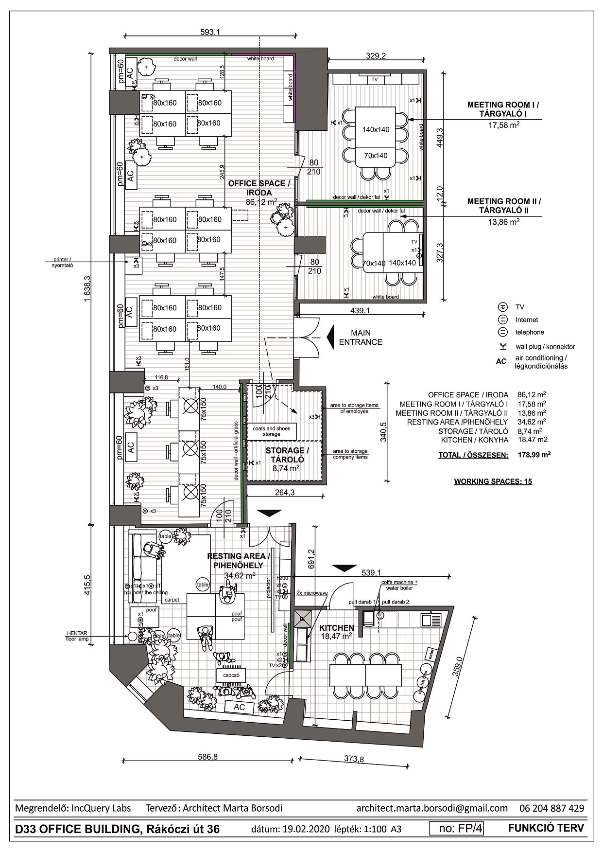
This is next interior design project of ours, where we designed second office for IncQuery Labs. We proposed new functional plan but keeping existing wall structure of the office. We developed electrical and ceiling layout with LED and hanging lamps, we have chosen furniture, decoration and gave idea how to refurbish original kitchen furniture by changing top and fronts. This amazing place has 180 m2. 🙂

Date:
Category:
Architect

Marta Borsodi